Projektas

Madisonas

Modernaus dizaino, dviejų aukštų, gyvenamasis namas. Gyvenamasis namas, turi garažą skirtą vienam automobiliui. Namo antrame aukšte suprojektuoti du miegamieji, todėl namas labiau tinka mažos šeimos poreikiams. Pirmame aukšte papildomai numatytas darbo kambarys. Vonios kambariai įrengiami abiejuose pastato aukštuose. Gyvenamasis namas suprojektuotas su erdviu balkonu į kurį galima patekti iš abiejų miegamųjų kambarių antrame aukšte. Pirmame aukšte įrengiama erdvi terasa po stogu.

Gauti pasiūlymą







    I AUKŠTAS
    1. Tambūras6,00 m²
    2. Garažas25,40 m²
    3. Pagalbinė patalpa7,31 m²
    4. Svetainė - virtuvė51,95 m²
    5. Tualetas3,70 m²
    6. Kambarys14,56 m²
    NAMO BENDRAS PLOTAS159,16 m²
    NAMO ŠILDOMAS PLOTAS126,45 m²
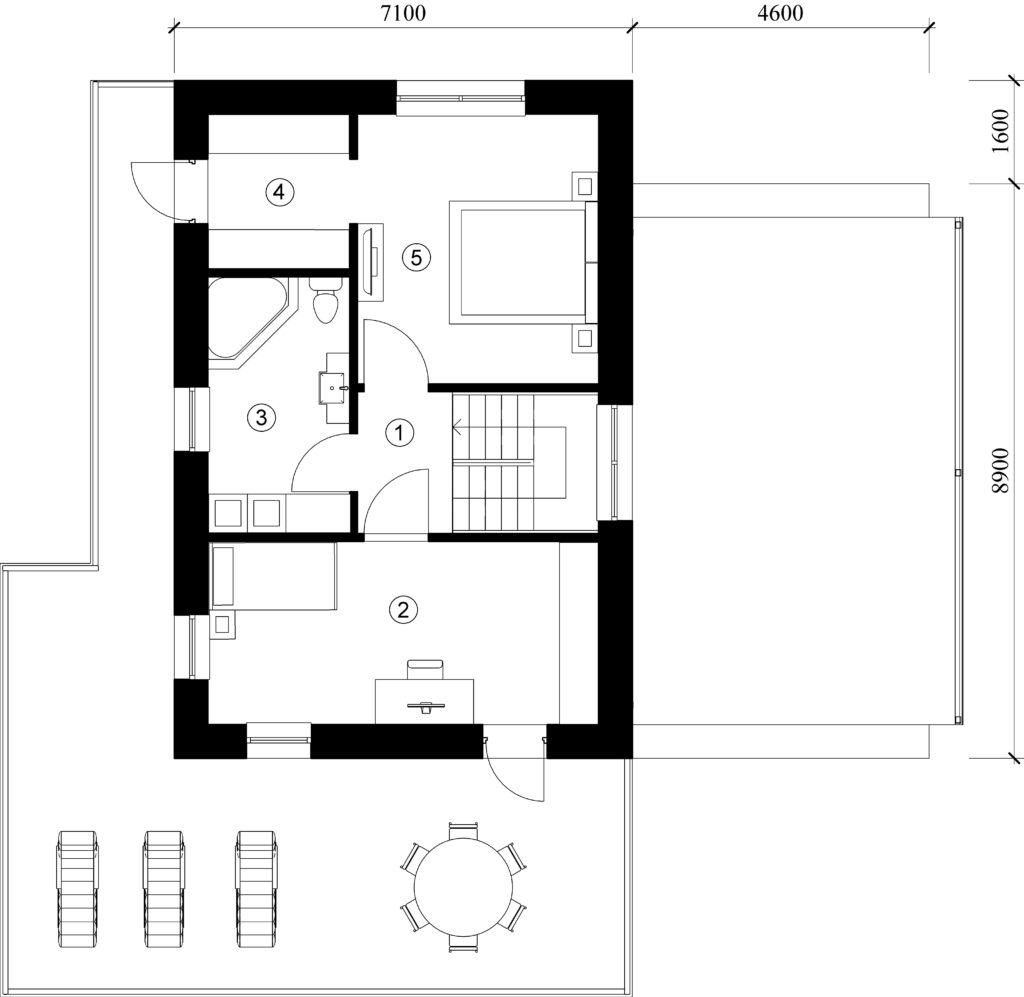
    II AUKŠTAS
    1. Koridorius3,24 m²
    2. Kambarys17,21 m²
    3. Tualetas - vonia8,76 m²
    4. Drabužinė5,34 m²
    5. Kambarys15,69 m²
    NAMO BENDRAS PLOTAS159,16 m²
    NAMO ŠILDOMAS PLOTAS126,45 m²